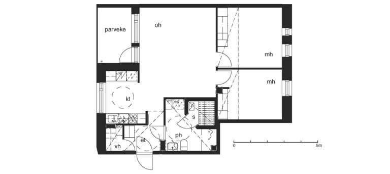
Ihana vaalea läpitalon koti, jossa lasitettu parveke suuntautuu upealle sisäpihalle.
Tämä viihtyisä kuuden asuintalon kortteli on valmistunut vuonna 2013 ja kohdetta hoivaa oma talonmies.
Kurkkaa kohdetta ja sijaintia tarkemmin: https://vimeo.com/866371205?share=copy.
Laadukkaiden kotien pintamateriaaleihin on kiinnitetty huomiota. Kohteesta löytyy lämmin autohalli, pesutupa, kuivaushuone, huoneistokohtaiset irtaimistovarastot sekä yhteisvarastot urheiluvälineille ja lastenvaunuille. Rakennuksissa on myös omat saunatilat. Kerhohuoneita on kaksi ja toisesta on tällä hetkellä biljardi- ja pöytätennispöytä yhteisiin pelihetkiin. Taloyhtiö tarjoaa asukkailleen toistaiseksi maksuttoman 100 Mbit/s nettiyhteyden.
Asuintalojen keskelle muodostuu suojaisa sisäpiha, jonka turvallisuuteen, toimivuuteen ja viihtyvyyteen on kiinnitetty paljon huomiota. Vehreä piha tarjoaa paljon virikkeitä lapsille ja houkuttelee aikuiset viihtymään.
Arjen palvelut löytyvät läheltä. Harrastus- ja ulkoilumahdollisuudet ovat yhteisöllisessä Herttoniemessä omaa luokkaansa. Alue kehittyy ja liikuntapalvelut paranevat, sillä Herttoniemen kartanon viereen rakentuu uusi harjoitusjäähalli. Kodin vieressä on mm. Roihuvuoren liikuntapuisto, Kirsikkapuisto ja Herttoniemen kartanon puisto. Tuorinniemen uimaranta on lähellä ja pienen matkan päässä Kivinokan laaja viher- ja metsäalue sekä ihana Herttoniemen siirtolapuutarha.
Liikkuminen sujuu helposti myös julkisella liikenteellä, sillä lähin bussipysäkki sijaitsee kohteen edessä ja metroasemalle on alle kilometri. Metro vie Helsingin keskustaan kymmenessä ja Itikseen neljässä minuutissa.
Tämä kiinteistö on kiinteistösähkön käytöltään täysin hiilineutraali. Kiinteistön käyttämä sähkö on tuotettu 100 % uusiutuvista energialähteistä, pääosin kotimaisella tuulivoimalla 1.1.2023 alkaen.
Kiinnostuitko? Jätä hakemus heti!
Esittelemme asuntoja vain hakemusten perusteella valituille hakijoille.
































































Asukkaiden terveisiä
"Asuinalue Abraham Wetterin tiellä on hyvin kodikas ja yhteisöllinen!"
Asukkaiden terveisiä
"Kerhohuone on todella iso ja tilava. Pelihuone on myös kiva lisä."
Asukkaiden terveisiä
"Alue ja talo ovat erittäin rauhallisia ja naapurit mukavia. "
Asukkaiden terveisiä
"Huoltomies on aivan loistava!"
Asukkaiden terveisiä
"Abraham Wetterin tien asuinalue on todella viihtyisä ja lapsiystävällinen!"
Asukkaiden terveisiä
"Se, että pääsee hissillä suoraan lämpimään autohalliin, on todella luksusta. :)"
Asukkaiden terveisiä
"Pesutupa toimii erinomaisesti: koneet eivät ole liian ruuhkaisia ja koneet ovat kunnossa."
Asukkaiden terveisiä
"Lenkkisauna on parhautta."
Asukkaiden terveisiä
"Tämä on ollut ihan huippukoti meidän perheelle 8 vuoden ajan. Kiitos KEVA:lle, isännöitsijälle ja huoltotiimille erinomaisesta toiminnasta! "
Asukkaiden terveisiä
"Abraham Wetterin tien asuintalot ovat onnistunut kokonaisuus, jossa eri elämäntilanteessa ja eri taustoista tulevat asukkaat viihtyvät."