Siirry sisältöön

Vuokrauskori

Vuokrauskorisi on tyhjä. Voit hakea sinulle sopivia asuntoja tai asuintaloja etusivun haun avulla ja lisätä ne vuokrauskoriisi. Vaihtoehtoisesti voit jättää avoimen asuntohakemuksen.

Ohita kuvakaruselli

Sorvaajankatu 1 A 1

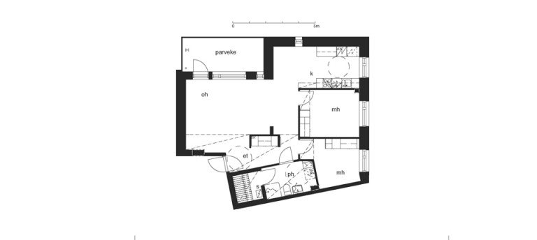
76 m2, 1369 €/kk, 3h+k+s+lasitettu parv, kerrostalo, Helsinki, Herttoniemi

Tilava kulmahuoneisto, jossa ilahduttaa mm. oma sauna, tilava keittiötila ja etelään suuntautuva lasitettu parveke. Ilmoituksen kuvat ovat mallikuvia talon eri huoneistoista. Mallikuvista näkee hyvin tämän huoneiston värimaailmaa.

Tämä viihtyisä kuuden asuintalon kortteli on valmistunut vuonna 2013. Kurkkaa kohdetta ja sijaintia tarkemmin: https://vimeo.com/866371205?share=copy.

Laadukkaiden kotien pintamateriaaleihin on kiinnitetty huomiota. Kohteesta löytyy lämmin autohalli, pesutupa, kuivaushuone, huoneistokohtaiset irtaimistovarastot sekä yhteisvarastot urheiluvälineille ja lastenvaunuille. Rakennuksissa on myös omat saunatilat. Kerhohuoneita on kaksi ja toisesta on tällä hetkellä biljardi- ja pöytätennispöytä yhteisiin pelihetkiin. Taloyhtiö tarjoaa asukkailleen toistaiseksi maksuttoman 100 Mbit/s nettiyhteyden.

Asuintalojen keskelle muodostuu suojaisa sisäpiha, jonka turvallisuuteen, toimivuuteen ja viihtyvyyteen on kiinnitetty paljon huomiota. Vehreä piha tarjoaa paljon virikkeitä lapsille ja houkuttelee aikuiset viihtymään.

Arjen palvelut löytyvät läheltä. Harrastus- ja ulkoilumahdollisuudet ovat yhteisöllisessä Herttoniemessä omaa luokkaansa. Alue kehittyy ja liikuntapalvelut paranevat, sillä Herttoniemen kartanon viereen rakentuu uusi harjoitusjäähalli. Kodin vieressä on mm. Roihuvuoren liikuntapuisto, Kirsikkapuisto ja Herttoniemen kartanon puisto. Tuorinniemen uimaranta on lähellä ja pienen matkan päässä Kivinokan laaja viher- ja metsäalue sekä ihana Herttoniemen siirtolapuutarha.

Liikkuminen sujuu helposti myös julkisella liikenteellä, sillä lähin bussipysäkki sijaitsee kohteen edessä ja metroasemalle on alle kilometri. Metro vie Helsingin keskustaan kymmenessä ja Itikseen neljässä minuutissa.

Tämä kiinteistö on kiinteistösähkön käytöltään täysin hiilineutraali. Kiinteistön käyttämä sähkö on tuotettu 100 % uusiutuvista energialähteistä, pääosin kotimaisella tuulivoimalla 1.1.2023 alkaen.

Kiinnostuitko? Jätä hakemus heti!
Esittelemme asuntoja vain hakemusten perusteella valituille hakijoille.

Tämä viihtyisä kuuden asuintalon kortteli on valmistunut vuonna 2013. Kurkkaa kohdetta ja sijaintia tarkemmin: https://vimeo.com/866371205?share=copy.

Laadukkaiden kotien pintamateriaaleihin on kiinnitetty huomiota. Kohteesta löytyy lämmin autohalli, pesutupa, kuivaushuone, huoneistokohtaiset irtaimistovarastot sekä yhteisvarastot urheiluvälineille ja lastenvaunuille. Rakennuksissa on myös omat saunatilat. Kerhohuoneita on kaksi ja toisesta on tällä hetkellä biljardi- ja pöytätennispöytä yhteisiin pelihetkiin. Taloyhtiö tarjoaa asukkailleen toistaiseksi maksuttoman 100 Mbit/s nettiyhteyden.

Asuintalojen keskelle muodostuu suojaisa sisäpiha, jonka turvallisuuteen, toimivuuteen ja viihtyvyyteen on kiinnitetty paljon huomiota. Vehreä piha tarjoaa paljon virikkeitä lapsille ja houkuttelee aikuiset viihtymään.

Arjen palvelut löytyvät läheltä. Harrastus- ja ulkoilumahdollisuudet ovat yhteisöllisessä Herttoniemessä omaa luokkaansa. Alue kehittyy ja liikuntapalvelut paranevat, sillä Herttoniemen kartanon viereen rakentuu uusi harjoitusjäähalli. Kodin vieressä on mm. Roihuvuoren liikuntapuisto, Kirsikkapuisto ja Herttoniemen kartanon puisto. Tuorinniemen uimaranta on lähellä ja pienen matkan päässä Kivinokan laaja viher- ja metsäalue sekä ihana Herttoniemen siirtolapuutarha.

Liikkuminen sujuu helposti myös julkisella liikenteellä, sillä lähin bussipysäkki sijaitsee kohteen edessä ja metroasemalle on alle kilometri. Metro vie Helsingin keskustaan kymmenessä ja Itikseen neljässä minuutissa.

Tämä kiinteistö on kiinteistösähkön käytöltään täysin hiilineutraali. Kiinteistön käyttämä sähkö on tuotettu 100 % uusiutuvista energialähteistä, pääosin kotimaisella tuulivoimalla 1.1.2023 alkaen.

Kiinnostuitko? Jätä hakemus heti!
Esittelemme asuntoja vain hakemusten perusteella valituille hakijoille.

Asukkaiden terveisiä

"Asuinalue Abraham Wetterin tiellä on hyvin kodikas ja yhteisöllinen!"

Asukkaiden terveisiä

"Kerhohuone on todella iso ja tilava. Pelihuone on myös kiva lisä."

Asukkaiden terveisiä

"Alue ja talo ovat erittäin rauhallisia ja naapurit mukavia. "

Asukkaiden terveisiä

"Huoltomies on aivan loistava!"

Asukkaiden terveisiä

"Abraham Wetterin tien asuinalue on todella viihtyisä ja lapsiystävällinen!"

Asukkaiden terveisiä

"Se, että pääsee hissillä suoraan lämpimään autohalliin, on todella luksusta. :)"

Asukkaiden terveisiä

"Pesutupa toimii erinomaisesti: koneet eivät ole liian ruuhkaisia ja koneet ovat kunnossa."

Asukkaiden terveisiä

"Lenkkisauna on parhautta."

Asukkaiden terveisiä

"Tämä on ollut ihan huippukoti meidän perheelle 8 vuoden ajan. Kiitos KEVA:lle, isännöitsijälle ja huoltotiimille erinomaisesta toiminnasta! "

Asukkaiden terveisiä

"Abraham Wetterin tien asuintalot ovat onnistunut kokonaisuus, jossa eri elämäntilanteessa ja eri taustoista tulevat asukkaat viihtyvät."

Perustiedot

Osoite: Sorvaajankatu 1 A 1
Tyyppi: kerrostalo
Rakennusvuosi: 2013
Huoneistotyyppi: 3h+k+s+lasitettu parv
Pinta-ala: 76 m2
Huoneiden lukumäärä: 3 huonetta
Kerros: 1.
Autopaikka: 73,50 €/kk lämpimässä autohallissa
Sähkö: ei sisälly vuokraan
Yleiskunto: hyvä
Vapautumispäivä: 01.06.2026
Vuokrasopimus: toistaiseksi voimassaoleva
Vuokra: 1369 €/kk
Vakuus: 0 €
Vesimaksu: 28 €/hlö/kk ennakkomaksu, tasaus kulutuksen mukaan
Lemmikit sallittu: kyllä
Tupakointi sallittu: ei
Vuokravastaava: Keva Kodit / Kiinteistö-Tahkola (ark. klo 10-15)
020 7488 200
[email protected]
Keva
www.keva.fi

Huoneiston tietoja

Tilat ja varustelu: oma sauna
parveke/terassi
Asuntoon kuuluu: sälekaihtimet
Tietoliikenneyhteydet: kaapeli-tv-liitäntä
Julkisivu: tiili
Keittiön lattia: laminaatti
Keittiön seinät: kaakeli
maalattu
Keittiön tyyppi: keittiö
Keittiön varusteet: liesituuletin
astianpesukone
Liesi: muu
Jääkaappi ja pakastin: jääkaappi/pakastin
Olohuoneen seinät: maalattu
Olohuoneen lattia: laminaatti
WC:n lattia: laatta
WC:n seinät: laatta
WC:n ja pesutilojen varustelu: wc
suihku
pesukoneliitäntä
WC-lukumäärä: 1
Saunan lattia: laatta
Saunan seinät: paneeli

Taloyhtiö

Yhtiö: Kiinteistö Oy Abraham Wetterintie 6
Kerrokset: 5
Tilat ja varustelu: pesutupa
kuivaushuone
kellarikomero
urheiluvälinevarasto
kaapeli-tv
hissi
taloyhtiössa sauna
100 M nettiyhteys
sähköauton latausmahdollisuus
Liikenneyhteydet: Bussipysäkki talon edessä, Herttoniemen metroasemalle n. 800 metriä.
Palvelut: Herttoniemen keskuksen ja mm. kauppakeskus Hertsin palvelut 10 min kävelymatkan päässä.
Koneellinen ilmanvaihto: kyllä
Lämmitystapa: kaukolämpö
Energialuokka: D
Parkkipaikkojen lukumäärä: 224 kpl. Lämpimän autohallin maksimi ajokorkeus on 2,2 metriä.
Hissi: kyllä
Lisätietoja: Lastenvaunuvarasto ja kaksi kerhohuonetta, joissa toisessa biljardipöytä.

Energiatodistukset ja ilmastokuitti

Energiatodistukset

Sorvaajankatu 1, 00880 Helsinki

Avaa

Ilmastokuitti

Kiinteistö Oy Abraham Wetterintie 6

Avaa

Yhtiön muita vapaita asuntoja