03/04/2026
Lkatu 66 C 29 - Linnankatu 66 C 29 - Keva Asunnot
Logo

Keva Kodit - Kivoja koteja

Linnankatu 66 C 29 - Lkatu 66 C 29

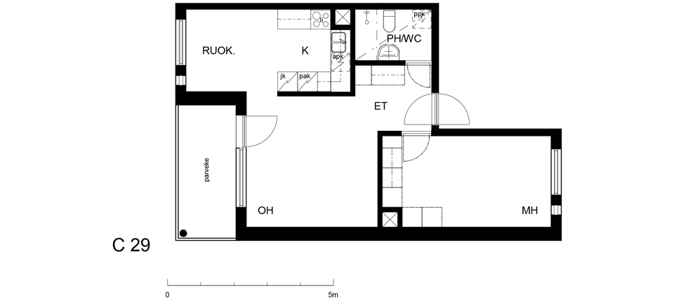
51 m2, 810 €/kk, 2 h + k + p, kerrostalo, Turku, Länsiranta
Vuokrattavissa alkaen 15.10.2018

Täällä asut Turun suosituimmalla asuinalueella kauniilla paikalla Aurajoen länsirannalla, kaikkien kulttuuripalveluiden lähellä. Keskustaan ja torille on matkaa vain 2 km.

Historia ja kulttuuri ovat alueella läsnä, sillä muun muassa Suomen Joutsen on löytänyt uuden kodin aivan naapuristasi. Läheisellä Varvintorilla taasen pääset nauttimaan tapahtumista läpi vuoden.

Taloyhtiö tarjoaa asukkailleen toistaiseksi maksuttoman 100 Mbit/s nettiyhteyden.

Vuokrasopimuksiimme on 1.11.2016 alkaen sisältynyt asuinhuoneistojen sisätiloja sekä huoneistoparvekkeita, -terasseja ja -pihoja koskeva tupakointikielto. Tähän kohteeseen Turun kaupunki on lisäksi asettanut tupakkalain mukaisen tupakointikiellon kaikille huoneistoparvekkeille ja huoneistopihoille.

Tässä kiinteistössä on tehty merkittävä panostus kiinteistön energiankäytön matalapäästöisyyteen. Kiinteistön lämmityksessä hyödynnetään ekologista ja energiatehokasta lämpöpumppua ja kiinteistön tarvitsema sähkö on tuotettu 100 % uusiutuvalla energialla. Näin toimittaessa kiinteistön energiankäytön hiilidioksidipäästöt on saatu hyvin lähelle nollaa.

Kiinnostuitko? Jätä hakemus heti! Esittelemme asuntoja vain hakemusten perusteella valituille hakijoille.

 

03/04/2026
Lkatu 66 C 29 - Linnankatu 66 C 29 - Keva Asunnot

Perustiedot

Osoite: Linnankatu 66 C 29
Tyyppi:kerrostalo
Rakennusvuosi: 1992
Huoneistotyyppi: 2 h + k + p
Pinta-ala: 51 m2
Huoneiden lukumäärä:kaksio
Kerros: 1.
Autopaikka: 42 - 49,50 €/kk
Sähkö: ei sisälly vuokraan
Yleiskunto:hyvä
Vapautumispäivä:Heti vapaa
Vuokrasopimus:toistaiseksi voimassaoleva
Vuokra: 810 €/kk
Vakuus: 0 €
Vesimaksu: 26 €/hlö/kk
Lemmikit sallittu: kyllä
Tupakointi sallittu: ei
Vuokravastaava: Keva Kodit / Kiinteistö-Tahkola (ark. klo 10-15)
020 7488 200
[email protected]
Keva
www.keva.fi

Taloyhtiö

Yhtiö: Kiinteistö Oy Aurajoenranta
Kerrokset: 5
Tilat ja varustelu:pesutupa, kuivaushuone, mankeli, kellarikomero, urheiluvälinevarasto, hissi, taloyhtiössa sauna, 100 M nettiyhteys
Liikenneyhteydet: bussipysäkki talon edustalla.
Palvelut: keskustaan ja torille matkaa 2km.
Lämmitystapa:kaukolämpö
Energialuokka: E2014
Hissi:kyllä