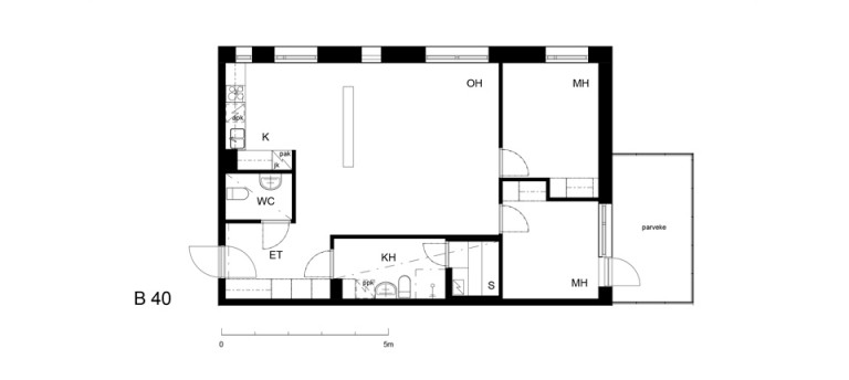
Tässä neljännessä kerroksessa sijaitsevassa kohdissa ilahduttaa mm. induktioliesi, kaksi WC:tä, oma sauna sekä sisäpihalle suuntautuva lasitettu parveke. Huoneistokuvat ovat lähes vastaavasta huoneistopohjasta (Niittaajankatu 9 B 25, 1 krs) ja parvekekuva on huoneistosta Niittaajankatu 9 B 32 (3 krs). Varustetaso saattaa poiketa kuvista.
Herttoniemenrannassa asut kodikkaalla asuinalueella aivan meren äärellä. Arjen luksusta tuo oma talonmies.
Kurkkaa kohdetta ja sijaintia tarkemmin: https://vimeo.com/866372633/52f273df02?share=copy.
Kiinteistöstä löytyy pesutupa ja kuivaushuone, huoneistokohtaiset irtaimistovarastot sekä yhteisvarastot pyörille ja lastenvaunuille. Ihastuttavan vehreällä sisäpihalla on mm. leikkipaikka. Autopaikkoja on sekä autohallissa että Niittaajankadun varrella. Taloyhtiö tarjoaa asukkailleen toistaiseksi maksuttoman 100 Mbit/s nettiyhteyden.
Kiinteistössä suoritetaan saumaustöitä 15.9.2025 alkaen.
Tällä vehreällä alueella on runsaasti puistoja ja virkistysalueita. Herttoniemen siirtolapuutarha on alle kilometrin päässä. Viereisessä liikuntapuistossa on monipuoliset liikuntamahdollisuudet ja kävelymatkan päässä on uimaranta.
Liikenneyhteydet ovat erinomaiset ja Herttoniemen metroasemalle kävelet alle 10 minuutissa. Herttoniemen metroaseman välittömässä läheisyydessä palvelevat myös alueen isot päivittäistavarakaupat.
Vuokrasopimuksiimme on 1.11.2016 alkaen sisältynyt asuinhuoneistojen sisätiloja sekä huoneistoparvekkeita, -terasseja ja -pihoja koskeva tupakointikielto. Tähän kohteeseen Helsingin kaupunki on lisäksi asettanut tupakkalain mukaisen tupakointikiellon kaikille huoneistoparvekkeille ja huoneistopihoille.
Tässä kiinteistössä on panostettu tasaisiin sisälämpötiloihin ja energiatehokkaaseen lämmitykseen älykkään lämmityksenohjauksen avulla, joka hyödyntää mm. alueellisia lähituntien sääennusteita. Kiinteistön käyttämä sähkö on tuotettu 100 % uusiutuvista energialähteistä, pääosin kotimaisella tuulivoimalla 1.1.2023 alkaen.
Kaikki Keva Kodit kuuluvat Green homes -verkostoon. Green homes -kiinteistöt ovat sitoutuneet energiankäytön ilmastovaikutusten nollaamiseen 2030 mennessä sekä energiatehokkuuden parantamiseen yhteistyössä vuokralaisten kanssa.
Kiinnostuitko? Jätä hakemus heti!
Esittelemme asuntoja vain hakemusten perusteella valituille hakijoille.






































 
                             
        
Asukkaiden terveisiä
"Rauhallinen taloyhtiö, jossa asiat toimii."
Asukkaiden terveisiä
"Emme voisi olla tyttäreni kanssa enempää tyytyväisiä! Ihana koti!"
Asukkaiden terveisiä
"Talonmies Kim on aivan huippu."
Asukkaiden terveisiä
"Upeasti hoidetut pihat ja raput."
Asukkaiden terveisiä
"Kiitos kuluneista vuosista! Asumiskokemus on ollut erinomainen."
Asukkaiden terveisiä
"Autohalli on arjen luksusta! "
Asukkaiden terveisiä
"Pesutuvassa hyvät ja toimivat laitteet."
Asukkaiden terveisiä
"Asuminen on sujuvaa ja viihtyisää. "