Etusi tähän kotiin: Saat 30 päivää ilmaista asumisaikaa, kun sopimuksesi alkaa viimeistään 1.12.2025. Etusi edellyttää 12 kk:n sitoutumista, jossa ensimmäinen mahdollinen irtisanomisaika on 11 kk:n kuluttua sopimuksen alkamisesta. Etu on voimassa uusille asukkaille, uusiin vuokrasopimuksiin. Etu ei koske käyttökorvausmaksuja (kuten esim. vesimaksut ja mahdollinen autopaikka).
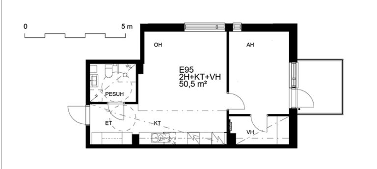
Etsitkö vaaleasävyistä tilavaa kaksiota läheltä Tikkurilan keskustaa? Hakuehtojasi vastaava kaksio nyt vuokrattavissa suositusta taloyhtiöstämme Viertolassa!
Osmankäämin savuttomat kodit sijoittuvat Keravanjoen tuntumaan. Joen varresta löytyy vehreitä lenkkipolkuja ja Tikkurilan urheilupuisto tarjoaa hyvät mahdollisuudet eri lajien harrastamiseen. Lähimmät palvelut kuten kauppa, koulu ja päiväkoti ovat miltei vieressä. Tikkurilan monipuolinen palvelutarjonta, kauppakeskus Dixi ja juna-asema ovat vain 2 km päässä. Osmankäämintieltä on kattavat bussiyhteydet ja lähin pysäkki on 200 metrin päässä. Kauppakeskus Jumboon ja viihdekeskus Flamingoon on alle 15 minuutin matka.
Talojen ylimmissä kerroksissa sijaitsevat saunaosastot ovat varattavissa asukkaille yksittäisinä vuoroina.
Taloyhtiö tarjoaa asukkailleen toistaiseksi maksuttoman 100 Mbit/s nettiyhteyden.
Tämä kiinteistö on energiankäytöltään täysin hiilineutraali. Kiinteistön käyttämä sähkö on tuotettu 100 % uusiutuvista energialähteistä, pääosin kotimaisella tuulivoimalla 1.1.2023 alkaen. Kohteessa käytettävä kaukolämpö on kaukolämpöyhtiön alkuperätakuiden mukaisesti peräisin 100 % uusiutuvista energialähteistä.
Kaikki Keva Kodit kuuluvat Green homes -verkostoon. Green homes -kiinteistöt ovat sitoutuneet energiankäytön ilmastovaikutusten nollaamiseen 2030 mennessä sekä energiatehokkuuden parantamiseen yhteistyössä vuokralaisten kanssa.
Kiinnostuitko? Jätä hakemus heti! Esittelemme asuntoja vain hakemusten perusteella valituille hakijoille.














































 
                                     
                             
        
Asukkaiden terveisiä
"Rauhaisa taloyhtiö, mukava asua."
Asukkaiden terveisiä
"Talot, rappukäytävät, roskakatokset ovat siistejä. Huolto toimii."
Asukkaiden terveisiä
"Olen viihtynyt. Eritoten asunnon äänieristys on hyvä."
Asukkaiden terveisiä
"Asukasportaali toimii ja tieto kulkee hyvin."
Asukkaiden terveisiä
"Yhteiset hienot saunatilat."
Asukkaiden terveisiä
"Pesutupa toimii hyvin, kätevä sähköinen varausjärjestelmä."
Asukkaiden terveisiä
"Asunto on hyvä ja rauhallinen, kulkuyhteydet hyvät, lähipalvelut kattavat."
Asukkaiden terveisiä
"Viihtyisä ja rauhallinen asuinympäristö."
Asukkaiden terveisiä
"Kaikki toimii minusta hyvin, olen tyytyväinen."