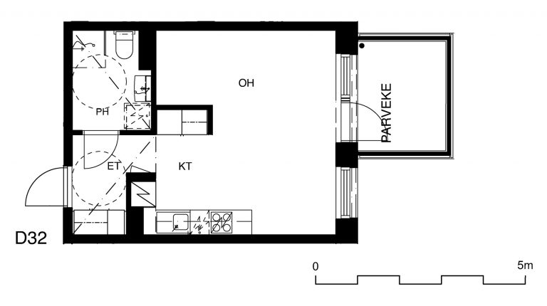
Käytännöllinen yksiö ylimmässä kerroksessa odottaa uusia asukkaita. Viihtyisän kodin kätevä alkovi ja lasitettu parveke tuovat mukavaa joustoa sisustukseen.
Jos arvostat rauhallista taloyhteisöä luotettavalta vuokranantajalta loistavien kulkuyhteyksien äärellä, täytä hakemus Spinellikujalle!
Keväällä 2020 valmistuneet raikkaat kodit sijoittuvat ihanteellisesti palvelujen tuntumaan, kuitenkin rauhallisesti luonnonhelmaan ulkoilumaastojen kainaloon. Lähimmät palvelut kuten Kauppakeskus Kivis, koulu ja päiväkoti lähettyvillä ja helpon liikkumisen mahdollistaa hyvät juna- ja bussiyhteydet sekä kätevä sijainti Tampereen moottoritien varrella.
Viereisestä Spinelliparkin parkkihallista on vuokrattavissa lämpötolpallisia autopaikkoja.
Tutustu Spinellikuja 1 videoesittelyyn tästä: https://vimeo.com/1130223813?share=copy&fl=sv&fe=ci .
Kaikki Keva Kodit kuuluvat Green homes -verkostoon. Green homes -kiinteistöt ovat sitoutuneet energiankäytön ilmastovaikutusten nollaamiseen 2030 mennessä sekä energiatehokkuuden parantamiseen yhteistyössä vuokralaisten kanssa.
Tämä kiinteistö on kiinteistösähkön käytöltään täysin hiilineutraali. Kiinteistön käyttämä sähkö on tuotettu 100 % uusiutuvista energialähteistä, pääosin kotimaisella tuulivoimalla 1.1.2023 alkaen.
Spinellikuja 1:n kodit ovat savuttomia ja lemmikit ovat tervetulleita. Hakijoiden luottotiedot tarkistetaan.
Kiinnostuitko? Jätä hakemus heti! Esittelemme asuntoja vain hakemusten perusteella valituille hakijoille.


















































Asukkaiden terveisiä
"Olette luoneet erittäin viihtyisän ympäristön asumiselle, täällä tuntuu kodilta!"
Asukkaiden terveisiä
"Asunnon kunto on hyvä, materiaalit on valittu hyvin ja taloyhtiö on rauhallinen. Asuminen on mukavaa ja vaivatonta."
Asukkaiden terveisiä
"Yksi parhaimmista asunnoista ja taloyhtiöistä, joissa olen koskaan asunut. Kiitos paljon."
Asukkaiden terveisiä
"Yhteiset tilat on siivottu hyvin."
Asukkaiden terveisiä
"Sauna, kerhotila ja pesutupa ovat mahtavat."
Asukkaiden terveisiä
"Viihtyisä ja rauhallinen taloyhtiö."
Asukkaiden terveisiä
"Palvelut ovat lähellä, kierrätys helppoa ja autohallissa on tilaa."