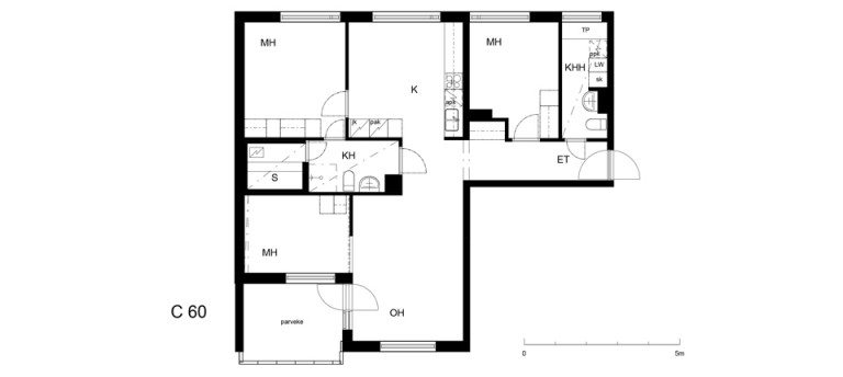
Vuosaaressa tarjolla viidennen kerroksen neliö. Asunnossa oma sauna ja lasitettu parveke. Arjen pyörittämistä helpottavat mm. kaksi wc:tä sekä kodinhoitohuone. Ilmoituksen kuvat ovat mallikuvia taloyhtiön muista asunnoista.
Vuosaaressa asut lähellä luontoa ja siten merellinen asuinalue tarjoaakin loistavat ulkoilu- ja urheilumahdollisuudet.
Metroasema sijaitsee vain 500 metrin päässä ja Helsingin keskustaan pääsetkin vain 20 minuutissa. Metroaseman välittömästä läheisyydestä löydät Vuosaaren keskustan monipuoliset palvelut.
Tässä kiinteistössä on panostettu tasaisiin sisälämpötiloihin ja energiatehokkaaseen lämmitykseen älykkään lämmityksenohjauksen avulla, joka hyödyntää mm. alueellisia lähituntien sääennusteita. Kiinteistön käyttämä sähkö on tuotettu 100 % uusiutuvista energialähteistä, pääosin kotimaisella tuulivoimalla 1.1.2023 alkaen.
Kiinnostuitko? Jätä hakemus heti! Esittelemme asuntoja vain hakemusten perusteella valituille hakijoille.
































Terveisiä asukkailta
"Mukavaa, kun talon lapsilla on turvallinen pihapiiri leikkiä tuossa sisäpihalla."
Terveisiä asukkailta
"Todella rauhallista täällä on asua ja mukavat kohteliaat naapurit, piha-alue on viihtyisä ja tosi kotoisa."
Terveisiä asukkailta
"Tunnen että Keva välittää ihan tavallisesta asukkaasta, koko elämänkaaren matkalta."