Siirry sisältöön

Vuokrauskori

Vuokrauskorisi on tyhjä. Voit hakea sinulle sopivia asuntoja tai asuintaloja etusivun haun avulla ja lisätä ne vuokrauskoriisi. Vaihtoehtoisesti voit jättää avoimen asuntohakemuksen.

Ohita kuvakaruselli

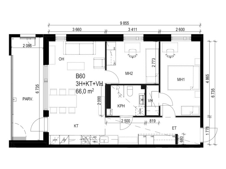
Konalankuja 1 B 60

66 m2, 1340 €/kk, 3h+kt+vh+lasitettu parv, kerrostalo, Helsinki, Konala

Tässä kodissa (5 krs) on mukavan iso lasitettu parveke, modernit kodinkoneet ja viilennys, jotka tekevät asumisesta miellyttävää vuoden ympäri. Huoneistokuvat ovat lähes vastaavasta huoneistopohjasta (B 67, 6 krs.)

Tyylikkäät, hyvin varustellut kodit kutsuvat nauttimaan sujuvasta arjesta kehittyvän asuinalueen sykkeessä. Asumisen mukavuutta lisäävät asuntojen isot lasitetut parvekkeet sekä lattiaviilennys ja -lämmitys maalämpöä ja -viileää hyödyntäen. Taloyhtiön kaikki rakennukset kuuluvat energiatehokkuudeltaan ylimpään A-luokkaan. Kiinteistössä hyödynnetään myös aurinkopaneelien tuottamaa sähköä.

Taloyhtiössä on kolme 6-8 kerroksista asuinkerrostaloa sekä yhteiskäyttöön tarkoitettu viherkattoinen pihatalo, jossa sijaitsee kerhohuone ja useampia saunatiloja, joihin voi varata yksittäisiä saunavuoroja. Asukkaiden käytössä on monipuolisesti myös muita yhteiskäyttötiloja kuten harrastetila, pesutuvat ja kuivaushuoneet. Kodit ovat savuttomia – tupakointi ei ole sallittu asuntojen sisätiloissa eikä parvekkeilla tai terasseilla.

Konalan viihtyisä asuinalue sijaitsee loistopaikalla hyvien ulkoilumahdollisuuksien, kattavien palveluiden (mm. Kauppakeskus Ristikko) ja Vihdintien ja Hämeenlinnanväylän liikenneyhteyksien ääressä.

Kiinnostuitko? Jätä hakemus heti!
Mikäli tarvitset autopaikan, ilmoitathan siitä asuntohakemuksessasi.
Esittelemme asuntoja vain hakemusten perusteella valituille hakijoille.

Tyylikkäät, hyvin varustellut kodit kutsuvat nauttimaan sujuvasta arjesta kehittyvän asuinalueen sykkeessä. Asumisen mukavuutta lisäävät asuntojen isot lasitetut parvekkeet sekä lattiaviilennys ja -lämmitys maalämpöä ja -viileää hyödyntäen. Taloyhtiön kaikki rakennukset kuuluvat energiatehokkuudeltaan ylimpään A-luokkaan. Kiinteistössä hyödynnetään myös aurinkopaneelien tuottamaa sähköä.

Taloyhtiössä on kolme 6-8 kerroksista asuinkerrostaloa sekä yhteiskäyttöön tarkoitettu viherkattoinen pihatalo, jossa sijaitsee kerhohuone ja useampia saunatiloja, joihin voi varata yksittäisiä saunavuoroja. Asukkaiden käytössä on monipuolisesti myös muita yhteiskäyttötiloja kuten harrastetila, pesutuvat ja kuivaushuoneet. Kodit ovat savuttomia – tupakointi ei ole sallittu asuntojen sisätiloissa eikä parvekkeilla tai terasseilla.

Konalan viihtyisä asuinalue sijaitsee loistopaikalla hyvien ulkoilumahdollisuuksien, kattavien palveluiden (mm. Kauppakeskus Ristikko) ja Vihdintien ja Hämeenlinnanväylän liikenneyhteyksien ääressä.

Kiinnostuitko? Jätä hakemus heti!
Mikäli tarvitset autopaikan, ilmoitathan siitä asuntohakemuksessasi.
Esittelemme asuntoja vain hakemusten perusteella valituille hakijoille.

Perustiedot

Osoite: Konalankuja 1 B 60
Tyyppi: kerrostalo
Rakennusvuosi: 2025
Huoneistotyyppi: 3h+kt+vh+lasitettu parv
Pinta-ala: 66 m2
Huoneiden lukumäärä: 3 huonetta
Kerros: 5. kerros
Sähkö: ei sisälly vuokraan
Yleiskunto: hyvä
Vapautumispäivä: Heti vapaa
Vuokrasopimus: toistaiseksi voimassaoleva
Vuokra: 1340 €/kk
Vakuus: 0 €
Vesimaksu: 20 €/hlö/kk ennakkomaksu, tasaus kulutuksen mukaan
Lemmikit sallittu: kyllä
Tupakointi sallittu: ei
Vuokravastaava: Keva Kodit / Kiinteistö-Tahkola (ark. klo 10-15)
020 7488 200
[email protected]
Keva
www.keva.fi

Huoneiston tietoja

Tilat ja varustelu: parveke/terassi
Asuntoon kuuluu: sälekaihtimet
vaatehuone
Julkisivu: tiili
Keittiön lattia: laminaatti
Keittiön seinät: maalattu
Keittiön tyyppi: tupakeittiö
Keittiön varusteet: liesikupu
astianpesukone
Liesi: induktioliesi
Jääkaappi ja pakastin: jääkaappi/pakastin
Olohuoneen seinät: maalattu
Olohuoneen lattia: laminaatti
WC:n lattia: laatta
WC:n seinät: laatta
WC:n ja pesutilojen varustelu: wc
suihku
suihkuseinä
pesukoneliitäntä
WC-lukumäärä: 1

Taloyhtiö

Yhtiö: Kiinteistö Oy Konalankuja 1
Kerrokset: 6
Tilat ja varustelu: pesutupa
kuivaushuone
kellarikomero
urheiluvälinevarasto
väestönsuoja
hissi
taloyhtiössa sauna
100 M nettiyhteys
Liikenneyhteydet: Kehä I:n, Vihdintien ja Hämeenlinnanväylän läheisyys. Useita bussilinjoja kulkee Vihdintietä ja Konalantietä pitkin. Malminkartanon ja Pitäjänmäen juna-asemat ovat 2,5 km päässä.
Palvelut: Lähellä mm. Kauppakeskus Ristikko
Koneellinen ilmanvaihto: kyllä
Lämmitystapa: maalämmitys
Energialuokka: A
Hissi: kyllä
Lisätietoja: Harrastehuone, kerhohuone, lastenvaunuvarasto

Energiatodistukset ja ilmastokuitti

Energiatodistukset

Konalankuja 1, 00390 Helsinki

Energiatodistus_KOy_Konalankuja_1-3_A_ja_B

Yhtiön muita vapaita asuntoja