Etusi tähän kotiin: Saat 30 päivää ilmaista asumisaikaa, kun sopimuksesi alkaa viimeistään 1.12.2025. Etusi edellyttää 12 kk:n sitoutumista, jossa ensimmäinen mahdollinen irtisanomisaika on 11 kk:n kuluttua sopimuksen alkamisesta. Etu on voimassa uusille asukkaille, uusiin vuokrasopimuksiin. Etu ei koske käyttökorvausmaksuja (kuten esim. vesimaksut ja mahdollinen autopaikka).
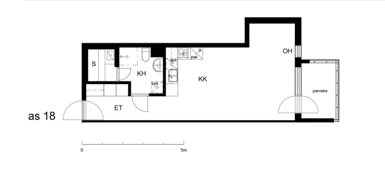
Siisti kolmannen kerroksen yksiö. Ilmoituksen kuvat ovat mallikuvia taloyhtiön vastaavankokoisesta pohjasta, joka on peilikuva. Materiaalit saattavat erota.
Täällä asut avarassa saunallisessa kodissa viihtyisän urbaanisti erinomaisten liikenneyhteyksien ja palveluiden äärellä. Astuessasi ulos ihanat ravintolat, Hakaniemen tori- ja kauppahalli sekä alueen kattava palvelutarjonta houkuttelee nauttimaan rennosta tunnelmasta. Liikkuminen on helppoa, sillä raitiovaunut ja bussit kulkevat vierestä ja metroasema on aivan naapurissa.
Lemmikit ovat tervetulleita. Taloyhtiö tarjoaa asukkailleen 100 Mbit/s nettiyhteyden.
Kiinteistössä on panostettu tasaisiin sisälämpötiloihin ja energiatehokkaaseen lämmitykseen älykkään lämmityksenohjauksen avulla, joka hyödyntää mm. alueellisia lähituntien sääennusteita.
Kiinteistössä on myös tehty merkittävä panostus kiinteistön energiankäytön matalapäästöisyyteen. Kiinteistön lämmityksessä hyödynnetään ekologista ja energiatehokasta lämpöpumppua ja kiinteistön tarvitsema sähkö on tuotettu 100 % uusiutuvalla energialla. Näin toimittaessa kiinteistön energiankäytön hiilidioksidipäästöt on saatu hyvin lähelle nollaa.
Kaikki Keva Kodit kuuluvat Green homes -verkostoon. Green homes -kiinteistöt ovat sitoutuneet energiankäytön ilmastovaikutusten nollaamiseen 2030 mennessä sekä energiatehokkuuden parantamiseen yhteistyössä vuokralaisten kanssa.
Kiinnostuitko? Jätä hakemus heti! Esittelemme asuntoja vain hakemusten perusteella valituille hakijoille.






































Terveisiä asukkailta
"Luotettava vuokranantaja."
Terveisiä asukkailta
"Rauhallinen talo."
Terveisiä asukkailta
"Piha-alue on viihtyisä."
Terveisiä asukkailta
"Hyvää asiakaspalvelu, siivous, jätehuolto ja kunnossapito."
Terveisiä asukkailta
"Asunto on 17 v. jälkeen hyväkuntoinen, kiinteistöhuolto korjaukset pelaa."
Terveisiä asukkailta
"Aina kun tarvitsen apua, asuntoon liittyvissä asioi olen saanut sitä. Hyvä huolto👍🏼"
Terveisiä asukkailta
"Helppo muuttaa, ei vakuutta ja hyvä sijainti"