Vuokrattavana hissitalon 5. kerroksessa kaksio, seniorikoti, joka on tarkoitettu 55 vuotta täyttäneille.
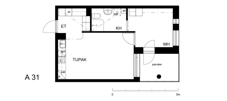
Tässä kodissa on tilantuntua ja mukavat puitteet viihtyisään asumiseen, jonka kokonaisuuden viimeistelee lasitettu parveke. Keittiössä on turvaliesi, astianpesukone, liesikupu, jääkaappi/pakastin.
Asuntoon kuuluva erillinen irtaimistovarasto sijaitsee samassa kerroksessa. Taloyhtiön kerhohuone, pesutupa ja kuivaushuone sijaitsevat ensimmäisessä kerroksessa, ja saunatilat löytyvät ylimmästä kerroksesta. Lemmikit ovat tervetulleita tähän viihtyisään kotiin. Talo tarjoaa ilmaisen 100 Mbit/s nettiyhteyden toistaiseksi.
Tervetuloa viihtymään hyvällä paikalla sijaitsevaan suosittuun senioritaloyhtiöömme!
Yhtiöjärjestyksen mukainen huoneistotyyppi on 1h+tk+lasitettu parveke.
Taloyhtiö tarjoaa asukkaille toistaiseksi maksuttoman 100mbit/s nettiyhteyden.
Asunnot on tarkoitettu itsenäisesti toimeentuleville, vähintään 55 vuotta täyttäneille henkilöille ja niiden suunnittelussa on otettu huomioon ikääntymisen tuomat mahdolliset liikuntarajoitteet.
Tikkurilassa kaikki palvelut ovat lähellä! Helsingin keskustaankin kestää vain noin 20 minuuttia. Tikkurilan keskustassa on monipuoliset palvelut ja parin kilometrin päästä Keravanjoen varrelta löydät viihtyisiä kesäkahviloita. Keravanjoen ympäristössä on myös erinomaiset ulkoilumahdollisuudet.
Tämä kiinteistö on energiankäytöltään täysin hiilineutraali. Kiinteistön käyttämä sähkö on tuotettu 100 % uusiutuvista energialähteistä, pääosin kotimaisella tuulivoimalla 1.1.2023 alkaen. Kohteessa käytettävä kaukolämpö on kaukolämpöyhtiön alkuperätakuiden mukaisesti peräisin 100 % uusiutuvista energialähteistä.
Kiinnostuitko? Jätä hakemus heti!
Esittelemme asuntoja vain hakemusten perusteella valituille hakijoille.






































Terveisiä asukkailta
"Rauhallista, vaikka keskeinen sijainti"
Terveisiä asukkailta
"Siisti, hyvin toimiva asunto"
Terveisiä asukkailta
"Olemme mieheni kanssa erittäin tyytyväisiä asuntoon, sen rauhallisuuteen ja siisteyteen"
Terveisiä asukkailta
"Huoltopalvelut toimivat hyvin ja palvelu on ystävällistä"
Terveisiä asukkailta
"Kaiken kaikkiaan Keva on onnistunut erittäin hyvin"
Terveisiä asukkailta
"Huoltoyhtiö on hyvä, varsinkin tämän talon huoltomies Paavo tekee hyvin hommat ja on miellyttävä. Ymmärtää senioritalon asukkaita."